Moving In
Interior Pictures
Hooking up DirecTV
The CraftCenter
AV System
Dining Room Mods
HVAC System
Our first SubZ
the HotTub
the ShopAddition
the Generator
Kitchen Remodel
Power and Lawn Toys
Gardening
Misc Projects
App A- Floor Plan
App B- Original Listing Sheet
Final Sunset Pix
Sunset Users Manual
Contact Info
sunset house book
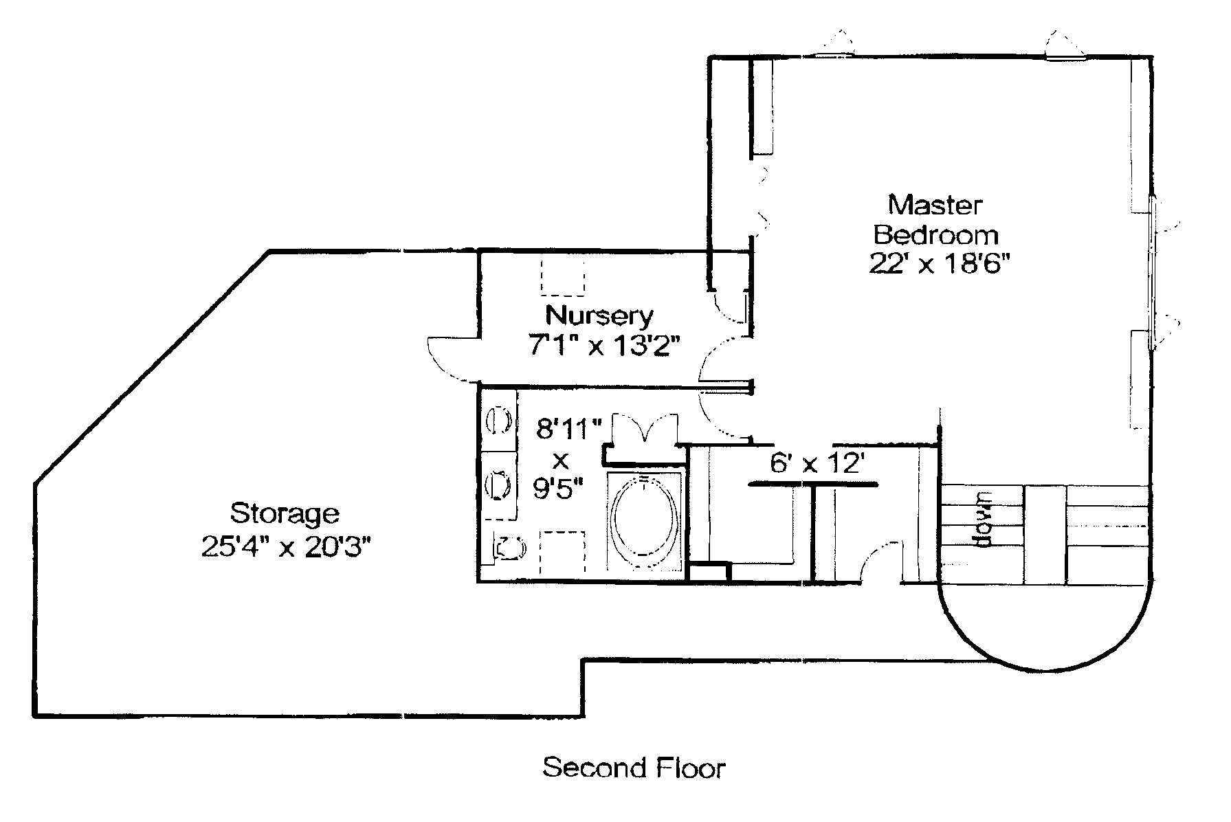
App A- Floor Plan
Main floor
Finished lower level
Upper level
[
Back
]
[
Next
]
austinhill.com
Home
/
Austin Hill Resorts
/
Sunset Road
/ App A- Floor Plan