Hole Hack
Replacing the Oven
Design
Prep
Doing the Work
Finish Pictures
Appliances
Design
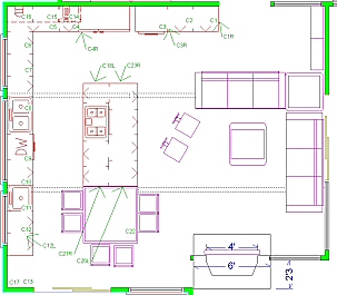
Here's the floor plan we're implementing...
click for enlargement
...and here's what we hope it will look like.
click for enlargement
[
Back
]
[
Next
]
austinhill.com
Home
/
Austin Hill Resorts
/
Shubert Drive
/
Kitchen Remodel
/ Design