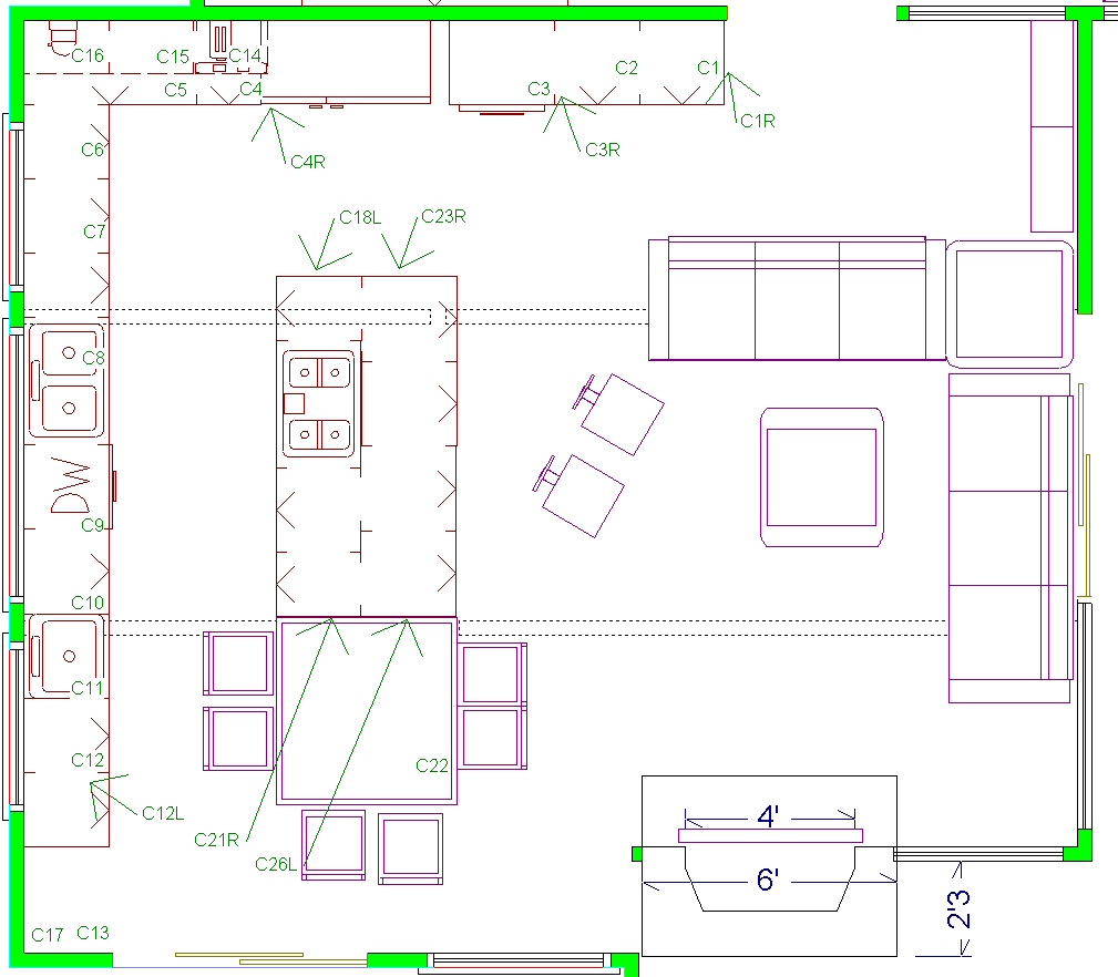
Kitchen Plan
New Kitchen in 3D
Existing Structure
austinhill.com
Home / Austin Hill Resorts / Shubert Drive / Kitchen Remodel / Design

This site is Password Protected- email us to request the username/password.

If you are trying to reach the Austin Hill Inn in Vermont, please visit www.austinhillinn.com Thank you!

©Copyright 1995-2011 AustinHill Enterprises- all rights reserved

last updated: 03/15/2016